Le contrôle non destructif... Pour préserver notre patrimoine !

Investigations géophysiques à l’église Saint-Hilaire de Viens (84)

Géopat réalise une prospection géoradar et sismique réfraction du sous-sol intérieur et extérieur

Contexte

Les objectifs sont :

  • de cartographier le substratum rocheux à l’intérieur et à l’extérieur de l’église,
  • de mettre en évidence d’éventuels vestiges enterrés sur l’ensemble du site,
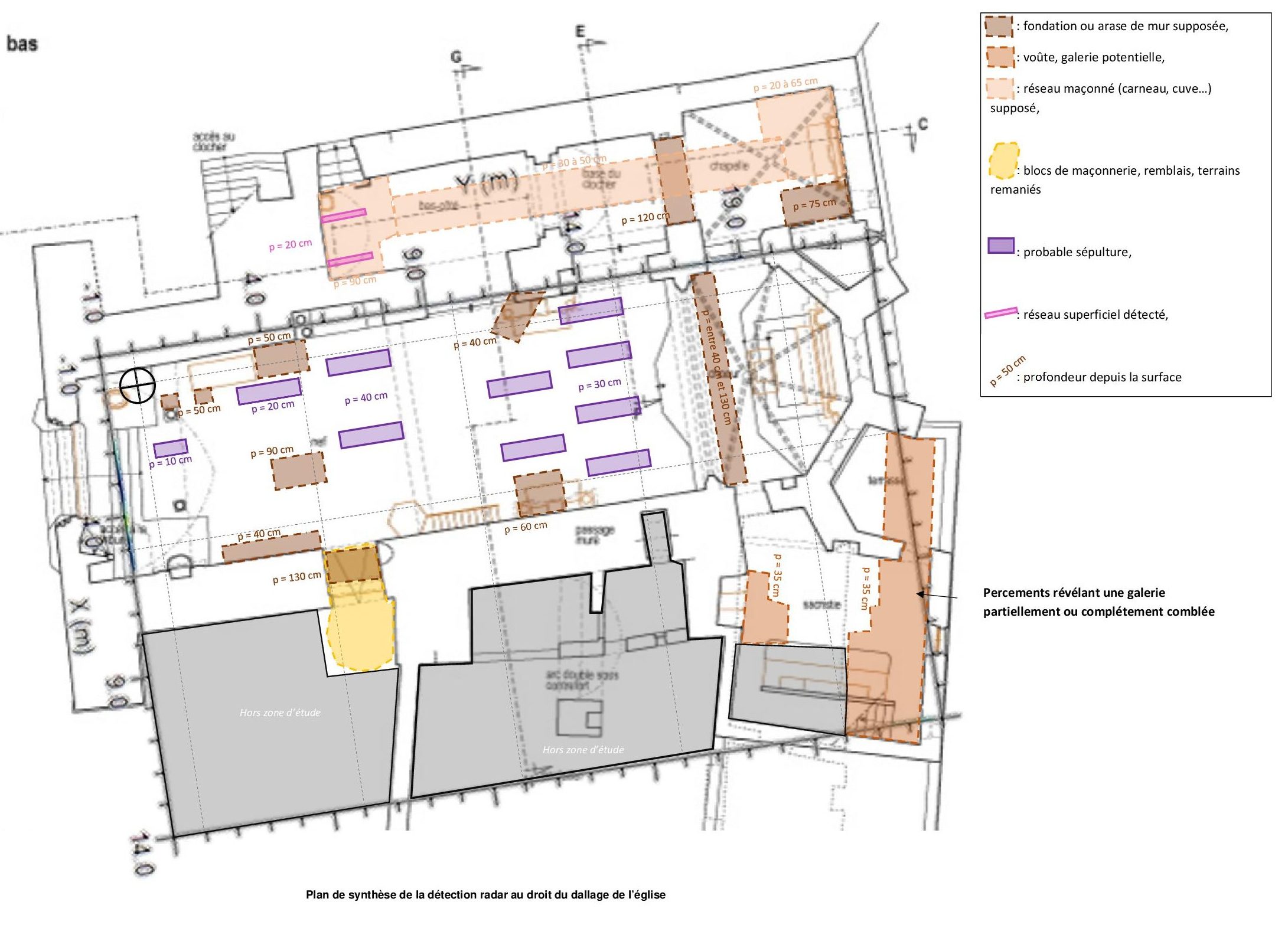
  • de rechercher un drain et de caractériser le remplissage d’un ancien tunnel à l’intérieur de l’église.

Essais réalisés

  • Géoradar
  • Sismique réfraction

Exemples de résultats

  • Radargrammes
  • Cartes énergétiques radar
  • Coupes sismiques réfraction
  • Plans synthétiques des éléments détectés

Période et durée du projet

Avril 2025 – 2 jours sur site

Maître d’ouvrage

Mairie de Viens

MOYENS
Radar Himod – Antennes 2 GHz et 400 /900 MHz
Sismique réfraction – DaqLink 4 ( Seismic Source)